Page suivante
Page précédente
Saint-Raphaël (83700)

Appartement 4 pièce(s) 3 chambre(s) 92.57 m²

1
1
130 m²
Réf VMC1197BIS

EXCLUSIVITE SAINT-RAPHAEL, dans une impasse au calme, à deux pas du centre-ville et des commerces, parfait compromis entre la villa et l'appartement pour cette maison 4 pièces avec studio.

Elle se compose de plain-pied : d'une entrée, d'un séjour avec cheminée, d'une cuisine américaine équipée, d'un dégagement, d'une chambre, d'une salle de douche et d'un wc indépendant.

A l'étage de deux chambres et une salle de bains avec wc.

Vous pourrez profiter de sa grande terrasse de 34 m² exposition Sud/est. Par la terrasse vous accèderez également à un studio avec salle d'eau/wc.

Cette maison est un parfait compromis entre la villa et l'appartement située à proximité immédiate du centre-ville, des commerces et écoles.

Une visite s'impose !

Bilan énergétique

Diagnostics énergetiques
A propos de ce bien Caractéristiques de ce bien
  • Surface 92,57 m²
  • terrain 130 m²
  • séjour 15 m²
  • 3 chambre(s)
  • 1 salle(s) de bain
  • 1 salle(s) d'eau
  • cuisine américaine (équipée)
  • Chauffage individuel : autre (autre)
  • exposition Sud-Est
  • 1 côté(s) mitoyen(s)
  • 2 niveau(x)
  • 1er étage
  • 1 étage(s)
  • vue TERRASSE
  • terrasse

Composition

Composition de ce bien

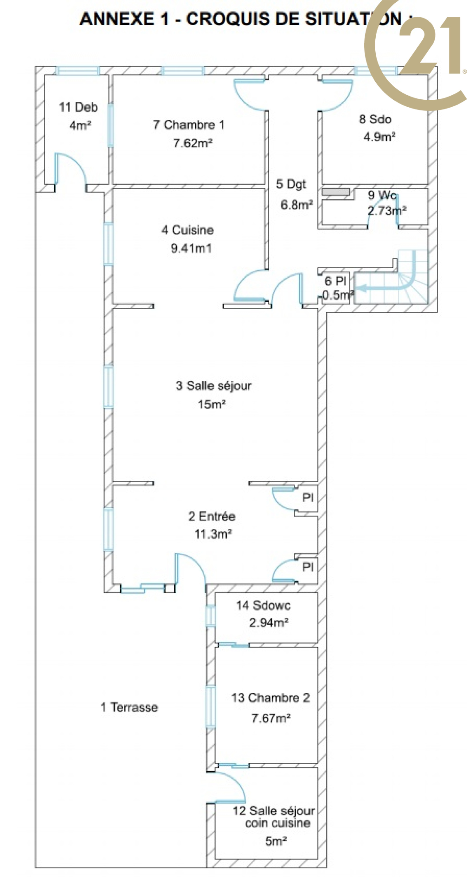
Rez-de-chaussée

  • entrée 11.30 m²
  • salon/sejour 15 m²
  • cuisine 9.41 m²
  • degagement 6.80 m²
  • chambre 7.62 m²
  • salle d'eau 4.90 m²
  • WC 2.73 m²
  • coin repas 5 m²
  • chambre 7.67 m²
  • chambre 2.94 m²
  • palier 1.30 m²
  • chambre 8.50 m²
  • chambre 6.35 m²
  • salle de bain 2.55 m²

Financier

Informations financières
Les honoraires d'agence seront intégralement à la charge du vendeur  
Taxe foncière annuelle 300 €

Simulation

Calcul des mensualités
* Champs obligatoires