Page suivante
Page précédente
Fréjus (83600)

Appartement 3 pièce(s) 2 chambre(s) 68.28 m²

1
Balcon
Ascenseur
328 000 €
Réf VMS3245

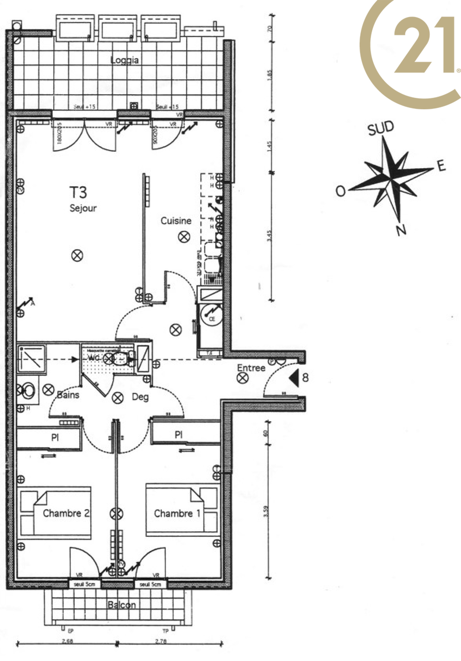
VENTE - FREJUS PLAGE - A découvrir à Fréjus plage, appartement t3 de 68m² à seulement 4 minutes à pied des plages, comprenant une loggia de 11m² côté sud (actuellement fermée) et un balcon côté chambres de 3m².

Situé au 2ème étage avec ascenseur, il comprend une entrée avec placard, un salon /salle à manger, une cuisine séparée (avec la possibilité d'ouvrir sur le séjour) avec accès à la loggia côté sud,

un espace nuit composé de deux chambres avec placard et balcon commun, une salle de bain et un wc séparé.

Appartement lumineux, traversant, au calme, à deux pas de toutes les commodités. Gare de Saint-Raphaël à 14min à pied. Le ravalement de l'immeuble est voté, il sera pris en charge par les vendeurs.

Copropriété de 40 lots, dont 17 lots d'habitations. Charges mensuelles (eau comprise) : 142€. Possibilité d'achat d'un garage en sus (soit 349000€ garage compris).

Bilan énergétique

Diagnostics énergetiques
A propos de ce bien Caractéristiques de ce bien
  • Surface 68,28 m²
  • carrez 68,28 m²
  • séjour 20 m²
  • 2 chambre(s)
  • 1 salle(s) de bain
  • construit en 2001
  • cuisine séparée (équipée)
  • Chauffage individuel : radiateur (electrique)
  • 1 garage(s)
  • exposition Sud
  • 2ème étage
  • 3 étage(s)
  • ascenseur
  • balcon
  • terrasse
  • quartier Frejus Plage
  • accès handicapé

Composition

Composition de ce bien

Etage 2

  • entrée 7.01 m²
  • placard 0.77 m²
  • salon/sejour 20.86 m²
  • cuisine 9.97 m²
  • chambre 10.54 m²
  • placard 1 m²
  • chambre 9.86 m²
  • placard 0.94 m²
  • salle de bain 3.81 m²
  • 2.33 m²
  • WC

Info copro

Copropriété
  • Copropriété Oui
  • Nombre de lots 40
  • Quote part annuelle des charges 1 704 €
  • Plan de sauvegarde Non

Financier

Informations financières
Prix de vente 328 000 € Les honoraires d'agence seront intégralement à la charge du vendeur
Charges 142 €
Taxe foncière annuelle 1 401 €

Simulation

Calcul des mensualités
* Champs obligatoires
Sabine PARCOLLET Négociatrice